A home for everyday cultures of resource sharing, ambi-amory, and contact on- and offline
FEEL CONDITIONS
Date
2025
Location
Princeton University School of Architecture

Feel Conditions—a speculation developed for ‘The House Transformed’ at Princeton University School of Architecture—is an apparatus for kinship and homemaking. It takes the form of a continuous feed that stages performances of daily life for its inhabitants, and formally anticipates everyday cultures of resource sharing, ambiamory, and contact on- and offline.

A 1:50 model of Feel Conditions reveals the house's interior

The project is conceived for a tightknit group of artists in Toronto. A series of interviews provided us with the programmatic structure of the building, and a series of priorities for each resident: romance in the quotidian; independent zones with their own areas for food preparation; private spaces with sonic separation for sleep, sex, and retreat; and shared spaces for hosting, rehearsing, partying, and work.

The convex facade that runs the length of Feel Conditions presents distorted, fish-eye views between interior and exterior
Visual and spatial devices in the home and its exterior spaces develop romance and encounter in the everyday

Stan Allen’s “Field Conditions” (published in 1985 in Points and Lines) argues that architecture should abandon the classical ambition to compose discrete, self-contained “objects” and instead operate as an open field in which form emerges from the interaction of many smaller elements, forces, and events. Allen insists that design be understood less as a bounded figure and more as “a space not defined by fixed points or measurements but by conditions.” Allen’s text could also be read as a polemic which argues for the transition from the individualist spirit of late capitalism to forms of architecture which favour egalitarian and social-democratic values. Feel Conditions is a terminally online cousin to Field Conditions. It is an architecture that spreads out across surface, invested in intentional sharing—and perhaps over-sharing—as much as it’s interested in isolation and logging off.

Isometric projection of Feel Conditions

The almost synthetic, continuous surface of its interior (the single-surface project here appropriated as a useful readymade) produces a culture of peripheral simultaneity among its inhabitants. Reality is generated through experience, intuition, and encounter.

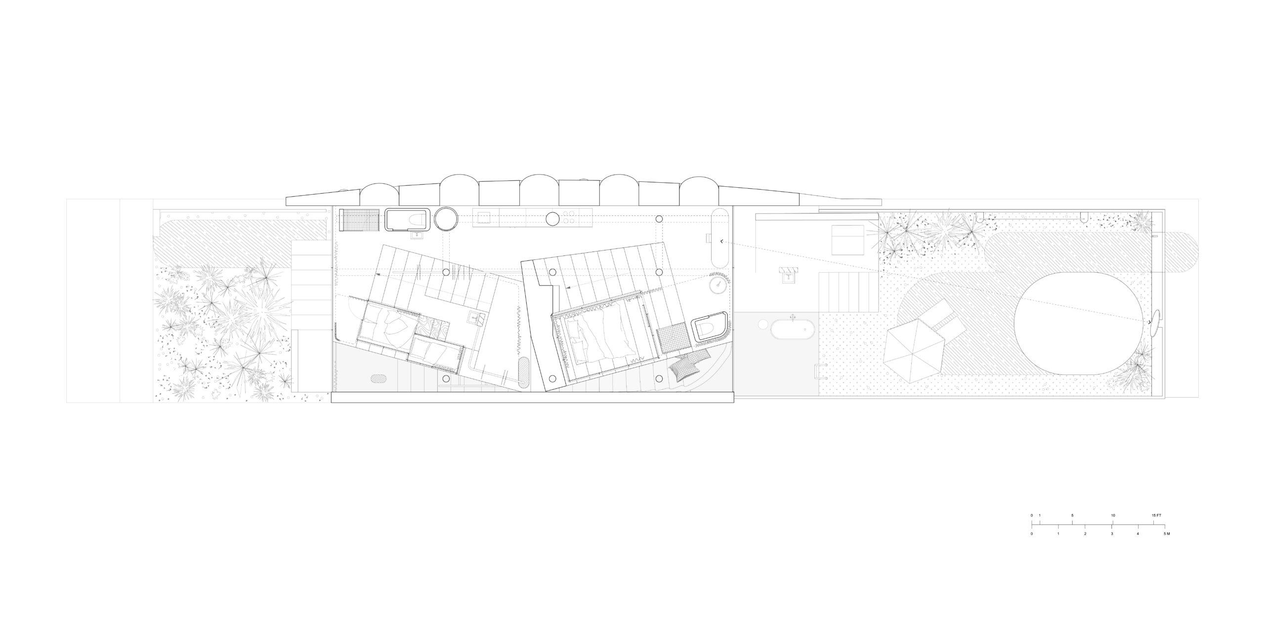
Plan taken approximately 6m above grade

How Evan, a dancer, moves across its steps will necessarily vary from the ways in which Michael will do the same when their partners come to stay for a night or two. Geoff and Anna, cinephiles and filmmakers, will engage its surfaces to project film, and the home’s inhabitants and guests alike will be afforded oblique glimpses from zone to zone. Each area is lit and conditioned by an infrastructural rig that attaches to the building’s columnar structure. Across the home’s plastic surfaces, activities appear and disappear in a scroll of daily life, and a contingent culture of program is platformed as events on a timeline.

Section

In this home, beds materialize pavilions of privacy and appear, stretch, and multiply to conform to the relationships they serve. For instance, one sleeping zone gathers two beds together in a contiguous, stepped arrangement. This accommodates togetherness and distance: both conditions can be enacted when additional partners visit and spend the night.

 

Project credits

 

This work was commissioned for “The House Transformed” at Princeton University School of Architecture, curated by Monica Ponce de Leon, September 25, 2025 to February 7, 2026.

 

Project team: Miles Gertler, Igor Bragado, Gladys Lee

Curator: Mónica Ponce de León

Assistant Curators: Shoshana Torn and Massimo Giannone

Fabrication Assistance: Rahul Sehijpaul

Physical Model: Gladys Lee

Client Group and Creative Consultation: Ana Zeiter Smith, Evan Webb, Michael Derworiz, Geoff Scot

Workshop and Facilities: John H. Daniels Faculty of Architecture, Landscape, and Design, University of Toronto

You are reading:
Title
FEEL CONDITIONS
Date
2025
Location
Princeton University School of Architecture
Images